2000年,江宁撤县建区,明确提出“新城”概念。
20载的发展,20载的蜕变。如今的江宁,经济发展实力强劲,地铁、交通通达性十足,商业规模也在不断扩大,教育资源也是更上一层楼。
2020年上半年,江宁区实现GDP约1101.50亿元,位居全市第一。人口增速快,产业再升级,12条地铁交织,江宁正大踏步朝着可见的光明未来迈进。
与此同时,近几年经济腾飞的江宁,房地产市场也随之步入了高速发展期。百家湖、九龙湖等区域已趋成熟,利好持续兑现,二手房价格一路走高,这无疑提高了人们安家于此的门槛。
如今,江宁每一处新地块的动态,都牵动着想在这里置业的人的心。近日,南京市规划和自然资源局公布了江宁禄口下关城开G01地块的规划方案,披露内容信息量大,似乎让大家看到了不一样的可能。
这块地与新开发的如意湖公园相距仅约600m,如意湖目测将会是继百家湖、九龙湖之后,江宁第三处湖居CBD区域,不少想要落户江宁的刚需客,都瞄准了这个盘。
小编为大家整理了本次公示的重点内容,各位看官记得做好笔记:
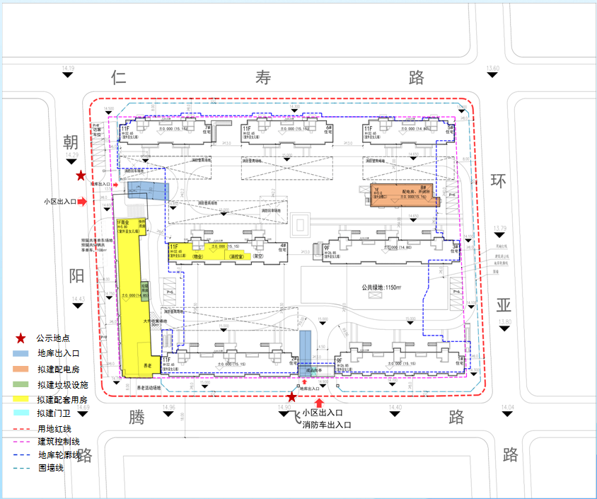
下关城开G01地块东至环亚路,南至腾飞路,西至朝阳路,北至仁寿路;
规划用地面积约32.45亩,规划用地性质为R2二类居住用地;
1.0<容积率≤1.5,24米<建筑高度≤35米,建筑密度≤25%,绿地率≥30%;
拟建7栋9-11F住宅,毛坯限价为17500元/㎡;
项目总建筑面积约4.59万平方米,其中地上建筑面积约3.24万平方米,地下建筑面积约1.35万平方米。
总平面示意图
据了解,今年2月,下关城开摇号拿下禄口G01地块,成交总价3.35亿元,成交楼面价10322元/㎡,毛坯限价17500元/㎡。
另外,此项目将与银城国际合作开发,将打造7栋9-11F住宅及商业等配套用房。
效果图
下关城开(南京市下关城市建设开发集团有限公司)作为老牌国企,是江苏省房地产业综合实力50强企业,且连续多年被评为建设新南京有功单位或先进单位。
而提起银城国际,我想每一位南京人都不会陌生。作为深耕金陵28载、始终致力匠筑人居典范的本土地产商,曾操盘多个经典豪宅项目,如坐落于玄武湖畔的金陵玖园。
老牌国企+老牌本地房企,南京人安心首选,这样的合作多多益善!

(项目区位图)
至于这块地的周边配套,小编也为大家查好了:
如意湖景观区拥有约600亩水域、约20万人口汇聚、约8000米环湖跑道,更有已建成的五星级温德姆花园酒店、空港会展中心、赫贤国际学校、江宁第三医院等配套设施,承载着空港经济开发区的城市配套功能。
(如意湖公园)
(温德姆花园酒店)

(赫贤国际学校)
另有玉振路幼儿园、礼尚路小学等教育项目在建,空港新城综合医院、如意湖主题购物公园、体育中心、文化中心规划中,如意湖CBD已初具雏形。

(礼尚路小学在建图)
商业方面现已有百利广场、中南·棉花塘和空港生活广场,小编还听说南侧有约100亿商业综合体在规划中,看来形成如意湖大型商圈指日可待。
交通方面,地块距离地铁S1号线翔宇路北站约2km,5站直达南京南站;规划有S18号线禄口新城站(规划从江北北站-禄口机场),双轨汇聚,通达全城。
根据二手房网站数据显示,目前禄口新城二手房均价高位已达1.9-2.1万/㎡不等,随着各项国家级政策逐步落地施行,未来仍有较大补涨空间。在此,小编期待江宁禄口G01地块作品首开。