近日,《N0.2022G92地块、N0.2022G93地块商业开发项目规划设计调整方案》发布,据显示,江宁杨家圩金融城滨水商业体规划有变:降低高度、重改外立面。
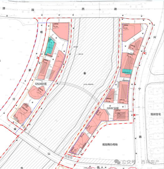
该项目位于南京市江宁区东山街道潭园西路以南、杨家圩路以东,其中NO.2022G92地块A分区、NO.2022G93地块C分区规划用地性质均为B1商业用地,两幅地块总用地面积约42.56亩,地块相关控制指标均为容积率≤1.2,建筑高度≤24米,建筑密度≤50%,绿地率≥20%。
现项目单位对NO.2022G92地块A分区及NO.2022G93地块C分区的规划设计方案进行了调整,两幅地块内共规划8栋商业及相关配套用房,总建筑面积约4.04万平方米,其中地上建筑面积约2.22万平方米,地下建筑面积约1.82万平方米。
调整如下↓
G92A分区多栋商业高度降低,原来是1栋4层、4栋3层、1栋2层,现在调整为:1栋3层,其余全部调整为2层。
G93C分区除了降低高度之外,楼栋分布也有调整,相比之前更加规整,之前7栋建筑,最高4层,现在改成4栋,高度最高3层。
调整前↓
调整后↓
此次规划调整后,沿街商业的外立面设计也有较大改变。
调整前↓
调整后↓
调整前↓
调整后↓
G92、G93两个项目加起来总建筑面积约29.29万方,住宅由仁恒操盘,商业由金融城负责,未来项目建成将成为杨家圩秦淮河畔的超级城市综合体,于2022年被南京金融城建设发展有限公司以28.35亿元拿下。其中,住宅部分由仁恒操盘,即仁恒龙湾。
根据此前官方公布的消息,金融城综合体商业部分未来将打造滨水高品质的商业空间。规划设计方案选取帷幔、秦淮院落、云锦、南京城墙等不同主题元素,通过中心广场、跨河人行步桥、建筑连廊、沿河景观等设计塑造动静结合的公共滨水商业空间。

项目位置优越,位于江宁核心区,旁边是龙湖天街,江宁市民中心和杨家圩市民公园,沿线还有秦淮河通过。