太稀缺!紧邻名校!鼓楼纯新盘预计下月公开

近日,鼓楼龙江汇文学校旁的翰文府最新规划出炉,打造2栋16-17层小高层,且为四代宅设计,自带露台。有消息称,项目户型设计为建面约132㎡四房两厅两卫、建面约158㎡四房两厅两卫,约60套房源,项目预计今年12月公开展厅,明年1月公开样板间并开盘(具体以开发商公布为准)!

效果图显示,项目外立面为简约现代化风格,户户配备露台和多重飘窗,外立面运用有石材、铝板和玻璃幕墙等材质。


项目主力户型建面约135m²、155m²(具体以开发商公布为准),均为四房两厅两卫设计,只有60套房源,非常稀缺。


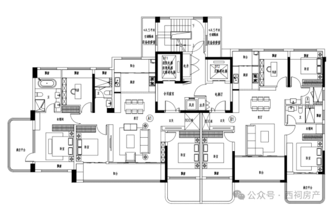
此前,项目户型图首次曝光——


155㎡A1(左)+135㎡C1(右)


155㎡A1(左)+135㎡B1(右)


今年7月30日,鼓楼龙江G47地块激战89轮,被杭州北谷拿下,成交楼面价40215元/㎡,溢价率约32.7%。

项目路之隔即为金陵汇文学校,有着十分显著的名校学区优势;地块距规划地铁13号线乐山路站约700米,距在建地铁9号线江东门站不足800米,出行十分便捷;半径400米范围内有吾悦广场、苏宁环球商贸城等商业体,配套十分成熟;有南大苏富特、南京国际服务外包大厦等产业园区。