据最新消息,江核万科G13项目预计最快本月18日公开虹悦城城市展厅,计划于9月公开售楼处。项目规划9栋6-8F洋房,1栋12F,2栋17F小高层,规划建面108㎡-165㎡。
据悉小区分为5种户型:108m² 、119m² 、129m² 、139m² 、165m²。其中108㎡、119㎡和139m²户型图流出(仅供交流参考,以最终官方释放为准)。
建面约108㎡三房两厅两卫↓
建面约119㎡三房两厅两卫↓
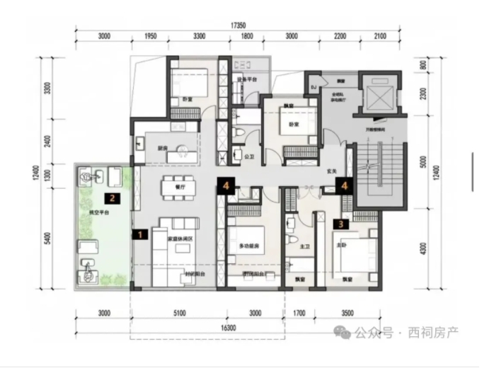
建面约139㎡四房两厅两卫↓
万科江核G13地块共规划12栋住宅楼,打造四代宅,其中包括9栋6-8层洋房,1栋12层、2栋17层高层,错层露台,其中部分楼栋设置架空层。

项目于江北核中核地区,紧邻华润国际社区,地块周边有在建中的金陵中学江北新区学校,地块距离11号线广西埂大街站,地理位置优越。
2023年10月27日,该地块被南京轩宇投资置业有限公司以11.8亿元底价拿下,成交楼面价19025元/㎡。