经过了一轮市场调整,今年楼市焦点,还看江北核心区!
万科、金地、中建东孚、招商、杭州滨江、仁恒等一批品牌开发商进驻,低密!叠墅!四代宅卷出前所未有高度!
2025年,江核待爆!
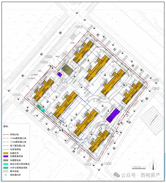
中建东孚G05项目
项目拟建4栋江景住宅,其中1、3号楼为17层小高层(1号楼局部14层),2、4号楼为7层洋房,全部首层架空(后期预计打造为童趣剧场、康体运动、书吧、健身房等)。项目将会打造第四代住宅,户户有露台,且立面采用错层布局,边户户型的露台是270度拐角露台。







项目紧邻扬子江生态公园,可尽享滨江景观风貌。地块周边引入有多所名校,可提供优质的教育配套。在建的新金融一期、中交综合体、华润万象城等商业配套,将形成核心区的商业中心。
2023年9月27日,南京江北新区建设投资集团有限公司以底价5.25亿元竞得该地块,楼面地价19678元/㎡。2024年10月13日,中建东孚官宣,将开发管理该地块。
万科G13
万科江核G13地块共规划12栋住宅楼,打造四代宅,其中包括9栋6-8层洋房,1栋12层、2栋17层高层,错层露台,其中部分楼栋设置架空层。据悉,该项目户型面积段约108-165㎡,预计将于今年年中上市。

项目位于顶山街道,东至规划路,西至广西埂大街,南至规划复始路,北至浦滨路。
规划用地性质为R2二类居住用地,用地面积3.65公顷,1.01≤容积率≤1.7,建筑高度≤80米,拟建总建筑面积约8.87万平方米,其中地上建筑面积约6.42万平方米,地下建筑面积约2.45万平方米。主要功能为住宅、配套用房及车库。建设单位为南京轩科房地产开发有限公司。
2023年10月27日,该地块被南京轩宇投资置业有限公司以11.8亿元底价拿下,成交楼面价19025元/㎡。
2024年10月11日,江苏省招标投标公共服务平台发布了“NO.新区2023G04、新区2023G13地块项目委托开发管理服务中标候选人公示”,拟中标人为南京裕岱置业有限公司,即万科。
项目于江北核中核地区,紧邻华润国际社区,地块周边有在建中的金陵中学江北新区学校,地块距离11号线广西埂大街站,地理位置优越。
保利G17项目
江北核心区江韵臻悦旁的保利G17项目规划出炉,项目打造四代宅,拟建8栋洋房大平层,其中4栋为9+1F洋房,4栋为6+1F洋房,其中4栋9+1F洋房均做了首层架空。有消息称,每栋楼都有一套顶楼复式,面积在150-200平左右。截至目前,该项目为江核容积率最低的项目,容积率仅为1.01。


项目位于南京江北新区,广西埂大街以北、横江大道以东地块,东至规划路,南至规划路,西至规划路,北至胜利路。
规划用地性质为R2二类居住用地(100%),用地面积约20398.55平方米,1.0<容积率≤1.01,绿地率≥30%,建筑高度≤80米,拟建总建筑面积约3.16万平方米,其中地上建筑面积约2.26万平方米,地下建筑面积约0.90万平方米,建设单位为南京盛乾房地产开发有限公司。
2023年底,保利联合扬子国投在江北核中核一口气拿下了四块地,去年,G15地块即江韵臻悦首发开盘。
招商G11项目
项目采用“高低配”布局,配置下沉庭院,拟建9栋8-25F河景住宅,户户有露台,部分楼栋首层架空。
效果图显示,项目窗墙比较高,外立面为大面积玻璃并采用香槟色线条勾色。

早在2024年10月11日,招商建管发布海报携手招商蛇口南京公司中标南京NO.新区2023G11地块代建管理服务。
G11地块位于江北核心区,周边有龙湖天璞、瑞香园、润辰府等项目。地块紧邻七里河,有长江、老山、七里河景观资源,附近有引入琅琊路小学优质教育资源的浦滨路小学。
2023年9月27日,NO.新区2023G11地块经过1轮竞拍,最终以9.9亿元底价成交,成交楼面价18046/㎡,拿地房企为南京北联建设。
杭州滨江G13项目
项目拟建6栋第四代住宅,全部为30F,户户带露台,首层全部架空。网传G13将打造约140㎡、168㎡、188㎡户型(实际以开发商公布为准)。

2月24日,据“江苏省招投标公告服务平台”显示,NO.新区2022G13房地产开发项目委托开发管理服务中标候选人公示,第一名中标候选人为杭州滨江,投标报价为6733.61万元。这意味着,杭州滨江大概率将代建操盘江核G13地块!
2024年12月26日,NO.新区2022G13地块项目曾发生了投资人变更,杭州滨江撤资。没想到3个月后,杭州滨江又以“代建”形式回归项目。
杭州滨江G13项目位于江北新区江核小鱼嘴板块,顶山街道金凤街以东、潜龙路以北、胜利路以西、萍逢路以南,总用地面积20484.21平方米, 为二类居住用地,容积率2.8,建筑限高100米。该地块于2022年11月10日被新居集团以底价13亿元竞得,成交楼面价22666元/㎡。
杭州滨江G23项目
天眼查显示,江北核心区G23地块总投资244600万,总建筑面积约119633.5平方米,其中地上建筑面积约81440.5平米,地下建筑面积约38193平米,项目拟建20栋6-16层主楼及若干配套,建筑高度不超过60米。
2024年11月28日,杭州滨江联手南京新居以底价13.51亿元拿下NO.2024新区G23地块,成交楼面价17209元/㎡。
该项目位于江北中央商务区,东临浦滨路,一路之隔即为山姆会员超市,西侧为东方万汇城综合体商业,周边还有虹悦城、金盛田等多个综合体商业,公共生活配套十分完善。地块邻近地铁10号线和在建地铁11号线换乘站,可快速通达江南主城和江北新主城各片区。地块周边已建成一中江北校区,在建育英二外、江北芳草园小学、南师附中等多所名校,优质教育资源丰富。地块周边已建成多个品质社区,人居氛围浓郁。
金地G08项目
江核青奥G08由金地管理携手金地商置东部区域代建。
江核青奥G08位于青奥板块,是2023年9月被南京江北新区科技投资集团底价拿下,成交总价15亿元,成交楼面价17984元/㎡。该项目位于青奥板块,浦滨路一路之隔即为浦口城南中心。紧邻金地未来学校、青奥体育公园、城南河和在建大悦城综合体、在建地铁11号线康盛路站,公共配套资源十分优越。该地块为二类居住用地,周边有观江樾、阅云台、铂岸江璟等项目。