继易主之后,江宁百家湖CBD综合体阳光国际中心又传来新动态!项目2栋公寓楼规划调整,主要涉及建筑层高、套内阳台、建筑轮阔等。

规划变更重点↓
1、层数调整:1-2#楼建筑层数由22层改为16层;
2、建筑高度调整:由75.75米改为68.95米;
3、层高调整:10~16层层高由3.3m改为4.8m;
4、室内调整:飘窗改为阳台,建筑外轮廓进深扩大0.4m,阳台进深1.8m;
5、外立面调整:深灰色格栅改为香槟金色格栅,深灰色涂料改为灰色铝板及香槟色铝板,增加顶部造型及纵向框首层挑檐由灰色铝板改为栗壳色铝板。
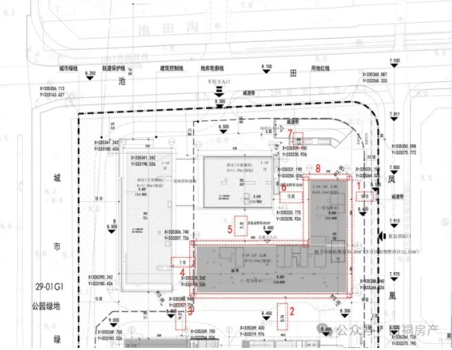
该项目位于南京市江宁区双龙大道以东、池田路以南,规划用地性质为Bb商办混合用地。项目于2021年6月11日取得建设工程规划许可证(建字第320115202100440号),1-2#楼许可建筑用途为酒店式公寓,拟按照《关于进一步促进商办设施持续健康发展的若干措施(修订)》(宁规划资源发〔2024〕133号)文件调整建筑层高、套内阳台、建筑轮等内容。


变更说明:
1、1-2#楼东侧距红线退让距离由10.15米调整为≥10.0米;
2、1-2#楼距3#楼间距由15.94米调整为≥15.4米;
3、1-2#楼距2#楼间距由14.57米调整为≥14.0米;
4、1-2#楼西南侧距1-1#楼间距由7.10米调整为≥6.6米;
5、1-2#楼北侧距1-1#楼间距由11.8米调整为≥11.3米;
6、1-2#楼西北侧距1-1#楼间距由13.05米调整为≥11.1米;
7、1-2#楼北侧距红线退让距离由28.13米调整为≥25.8米;
8、1-2#楼周边雨棚轮廓调整(具体尺寸详二层平面变更说明),建筑密度由原来的43%变更为43.27%。
9、1-2#楼建筑层数由22层改为16层,建筑高度由75.75米改为68.95米;
具体调整如下↓

变更说明:
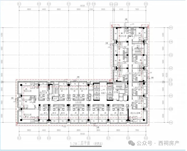
1、飘窗改为阳台,建筑外轮廓进深扩大0.4m,阳台进深1.8m;
2、南侧3-1轴~3-11轴处雨棚出挑宽度由1.5m改为1.05m,北侧3-1轴~3-8轴处雨棚出挑宽度由1.5m改为0.45m,北侧3-9轴~3-11轴处雨棚出挑宽度由0.25m改为2.05m,西侧3-A轴~3-D轴处雨棚出挑宽度由1.25m改为0.85m,西侧3-E轴~3-]轴处雨棚出挑宽度由0.25m改为1.25m,东侧3-A轴~3-1轴处雨棚出挑宽度由1.5m改为0.95m,

变更说明:
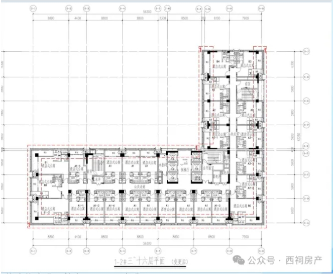
1、飘窗改为阳台,建筑外轮廓进深扩大0.4m,阳台进深1.8m;



变更说明:
1、建筑层数由22层改为16层,建筑高度由75.75m改为68.95m,其中10~16层层高由3.3m改为4.8m;
2、深灰色格栅改为香槟金色格栅,深灰色涂料改为灰色铝板及香槟色铝板,增加顶部造型及纵向框首层挑檐由灰色铝板改为栗壳色铝板;


1-2#北立面(变更后)变更说明:
1、建筑层数由22层改为16层,建筑高度由75.75m改为68.95m,其中10~16层层高由3.3m改为4.8m;
2、深灰色格栅改为香槟金色格栅,深灰色涂料改为灰色铝板及香槟色铝板,增加顶部造型及纵向框,首层挑檐由灰色铝板改为栗壳色铝板;
变更说明:
1、建筑层数由22层改为16层,建筑高度由75.75m改为68.95m,其中10~16层层高由3.3m改为4.8m;
2、深灰色格栅改为香槟金色格栅,深灰色涂料改为灰色铝板及香槟色铝板,增加顶部造型及纵向框,首层挑檐由灰色铝板改为栗壳色铝板;
阳光国际中心位于江宁百家湖板块,周边有百家湖地铁站、江宁会展中心、江宁美术馆、同曦假日百货、百家湖1912、金鹰、景枫中心等诸多配套,地理位置非常优越。
2020年9月24日,阳光城以93000万底价拿下该项目,住宅毛坯房销售限价34000元/㎡。
作为综合体项目,阳光国际中心主力产品包含商业、办公、酒店式公寓、住宅,其中,住宅部分阳光城檀境在2021年开盘,新房全装修均价3.6万/平,一经上市,公证摇号,开盘2小时就全部售罄。
2023年初,项目被曝陷入资金链危机,商办部分疑似停工。当时,西祠房产曾实探该项目,发现住宅组团部分檀境在安装玻璃,而商业组团的工地上则静悄悄。>>>独家!百家湖重磅商业体有救!阳光城退出,接盘方浮出水面

2024年6月,阳光国际中心住宅组团檀境在延期了1个多月后迎来交付,交付品质却不尽如人意。有网友爆料:檀境交付细节粗糙、公区功能单一等,如单元大堂电线乱飞、绿化太少,活动休闲设施少......项目商办部分仍处于停工状态。
2025年1月3日,天眼查显示,阳光国际中心所属开发企业——南京光悦房地产开发有限公司,于1月3日发生股权变更,原100%持股方——南京捷阳建设实业有限公司退出,南京城铁置业发展有限公司接盘,持股比例为100%,认缴出资额为60000万元。这也意味着,南京城铁置业发展有限公司全面接手该项目。>>>暴雷房企退出!刚刚,南京地标综合体,起死回生!