关门半年,城北大商场万谷慧生活广场即将启动更新!
近日,南京规划和自然资源局发布了《南京万谷•慧生活广场外立面改造规划设计方案》,拟对一期建筑内部进行装修,一期二期建筑局部外立面进行改造,主要涉及新增下沉广场、雨棚、室外楼梯、室外扶梯、门斗,调整外立面材质及主入口门斗造型等。
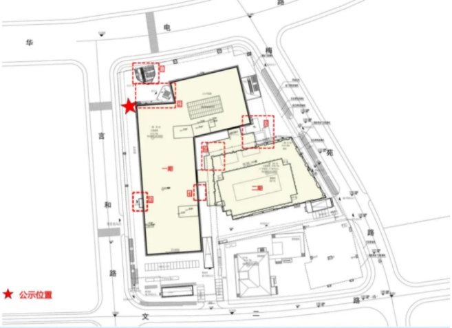
万谷慧生活广场位于迈皋桥街道,北临华电路,东临梅苑路,南临文二路,西临言和路。
这次的改造内容,主要有6点↓
1、一期增设下沉广场;
2、一期调整门斗造型及高度,门斗顶部增设室外楼梯至四层;在主入口西北角增设室外扶梯至三层;三层、四层外墙内退;四层增设外挑露台;
3、一期一层增设门斗;
4、一期一层增设出入口至内街;
5、一期、二期交接处外墙装饰材料改造出新,二层增设雨棚及造型构架;
6、二期入口处外墙装饰材料改造出新、二层局部增设雨棚及造型构架。

一期主入口:一期增设下沉广场;调整门斗造型及高度,门斗顶部增设室外楼梯至四层,在主入口西北角增设室外扶梯至三层;三层、四层外墙内退;四层增设外挑露台。

东入口及内街:一期、二期交接处二层外墙装饰材质局部由石材幕墙改为玻璃幕墙,二层增加雨棚及造型构架。

二期西入口:二期入口处二层外墙装饰材质局部由石材幕墙改为玻璃幕墙,二层增加雨棚及造型构架。

与此同时,商场改造后的效果图也同步曝光。








喧谷食集(B1)
据悉,该项目由COLORFULL昱景团队受邀对其进行全面升级,以“MALL+街区”为规划策略,打破传统商业综合体的封闭格局,从“纯商业空间”转变为“可容纳更广泛生活方式的空间”,打造一个被周边社群偏爱的更具生活化、社交性和体验感的理想生活场域,并激发周边街区活力,重新定义区域商业地标。
据悉,万谷慧生活广场于2015年8月1日正式开业,是迈皋桥片区首个大型商业综合体,总体量达10万平方米。当时一度是城北唯一的大型商业购物中心,还引入了星巴克、必胜客等城北首店,以及中国台湾第一影城喜满客。
2024年2月,万谷慧生活广场突然宣布闭店升级装修,仅剩余部分品牌店铺还维持营业。而到了今年年中时,营业的品牌商铺进一步减少。
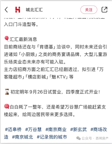
近日,有网友爆料,该商场预计12月有总包方进场拆除,预计明年10月开业。招商方面,一期拟引进万客隆超市、横店影城,二期拟引进魅KTV。
万谷慧生活广场后续动态,西祠房产将持续关注。