金基小行、龙江、鼓楼滨江三盘最新进展来了!
金基小行G12地块
近日,金基官宣:小行G12地块正式由其操盘。据悉,小行G12地块是该片区最低密的地块,容积率仅1.2,限高30米。
此前,有媒体披露该项目将打造3栋低密住宅,套数不多,定位高端改善,大概率会以洋房产品为主。
地块紧邻地铁S2号线与地铁10号线换乘站小行站,地块西侧有中通服地块规划180米超高层建筑,特安呐等产业,周边仁恒城市星光内商业社区及居住社区中心正在建设,地块西南侧的九年一贯制学校日前已确定南京师范大学附属中学雨花台学校。
该地块于今年6月30日土拍被南京尧智汇科技产业发展有限公司摘得,楼面地价约19311元/㎡。
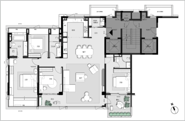
金基龙江G16地块
金基龙江G16地块案名正式曝光,为金基珑樾府。该地块容积率仅约1.5,建筑限高60米,共计只有86套房。
根据规划,该项目将打造3栋楼,涵盖2栋16层小高层,1栋8+7层洋房,从效果图不难看出,产品呈现会是第四代住宅,拥有超高得房率。

其户型面积约147、180㎡▼

园区内部,项目将打造中心庭院,规划有精心设计的人工湖、风雨连廊,做到户户有景,小而精致。
据悉,该地块是龙江片区近7年首次推出的住宅用地,位置优越,于今年7月底出让,也是今年土拍争抢最激烈的地块之一,历经41轮竞价,最终被金基摘得,成交楼面地价约32571元/㎡!
鼓楼滨江G51地块
鼓楼滨G51地块或将由绿城和金基2大房企合作开发。有消息称,目前由哪家企业操盘还未定。这块地容积率只有1.05,建筑高度不高于24米,是鼓楼滨江超低密地块。
地块临近在建地铁5号线底站方家营站(预计明年初通车),一路之隔就是今年刚交付的金基皓樾。地块周边教育资源十分优质,紧靠拉萨路小学方兴校区,交通出行便利,医疗、商业等功能配套齐全,一线滨江景观资源丰富。
该地块于2024年11月28日,经过2轮竞拍被绿城拿下,成交楼面价20165元/㎡。
金基城东紫金山G02地块
此外,金基在城东的低密项目也受到关注。金基城东紫金山G02项目,是近年来推出的距离紫金山最近且容积率最低的优质低密住宅用地,容积率仅为1.1。
项目将打造第四代山景花园洋房,共计371套房,带科技系统,建面约165㎡、185㎡、230㎡三种标准层户型以及对应的顶底跃产品约200-390㎡,实现观景阳台、服务阳台、露台、设备平台等空间超高赠送。
185㎡层户型图↓
四两厅三卫设计,南向为双套房设计,北侧还带有家政间,整体空间比较开阔。主卧配置豪华,独立卫浴带有双台盆、浴缸,飘窗可270°观景。露台与南向次卧套房相连,阳台也可通往卧室,但不会影响阳台的采光。
230㎡底跃户型的1层↓
底跃户型的一层为日常起居生活区,配置有餐客厅、厨房、卧室,4个卧室+3个卫生间,满足起居生活需要。
230㎡底跃户型的负一层↓
二层可做活动区,有品茗、会客空间,以及运动、工具房、酒窖等空间,同时,南侧和西侧还有超大的空间可做为庭院使用。
该地块于今年3月8日,被中北联合金基底价拿下,成交楼面价20080元/㎡。
G02位置优越,位于紫金山东麓,直线距离紫金山只有900米,到地铁4号线徐庄·苏宁总部站直线90米,距离仙林大道约700米,距钟山国际高尔夫酒店直距约700米,周边新房非常稀缺。