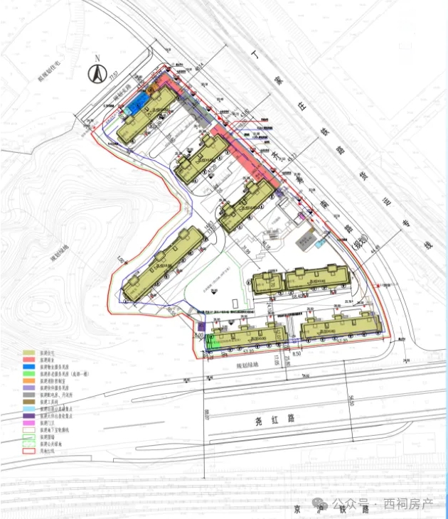
8月9日,城北迈皋桥G71地块规划出炉,该地块拟建7栋6-11F层低密住宅。效果图显示,该项目配置了下沉庭院和水景。


该项目位于栖霞区迈皋桥街道,北临规划支路,西至自然山体,东至规划齐寿南路,南至尧红路。
项目规划用地性质为R2二类居住用地(100%),用地面积21853.77平方米,1.0<容积率≤1.8,建筑高度≤35米,建筑密度≤30%,绿地率≥30%。拟建总建筑面积约5.9万平方米,其中:地上建筑面积约4.0万平方米,主要功能为住宅及相关配套设施;地下建筑面积约19万平方米,主要功能为车库及相关配套设施。
2023年11月25日,该地块被南京迈恒投资发展有限公司底价6.1亿元拿下,成交楼面价15507元/㎡。
天眼查显示,南京迈恒投资发展有限公司成立于2023年,是一家以从事房地产业为主的企业,企业注册资本1000万人民币,实缴资本50万人民币,由中铁建和栖霞建设控股,双方各控股90%、10%。
NO.2023G71地块位于迈皋桥片区,西侧为自然山体,南侧为已建成通车的主干道尧红路。地块周边有万寿医院、市妇幼保健院丁家庄院区等医疗配套资源,迈皋桥幼儿园、丁家庄小学、丁家庄第二小学、丁家庄初级中学等教育配套资源,南侧为聚宝山公园。目前,地块所在区域内有迈上品院、栖望府、星叶瑜憬尚府等多个高品质住宅在售,区域关注度较高。