啥情况?南京核心区200米高楼暂缓建设!官方回复…

近日,雨花核心区第一高楼被曝疑似“暂停”,究竟是啥原因?刚刚,官方回复了。

01

雨核第一高楼按下暂停键!官方:受道路施工影响

近日,有网友爆料称,雨花核心区华润置地中心200米高楼现场塔吊已经拆除,工人陆续退场,疑似“暂停”。



雨花核心区第一高楼究竟是什么情况?7月29日,南京市建委回复称:目前受制于地块周边四至四条市政道路建设,塔楼施工场地受影响,暂缓建设,待市政道路建设完成通车后,再进行启动。有关具体复工时间不在南京市建委职能范围内,建议稍作等待。


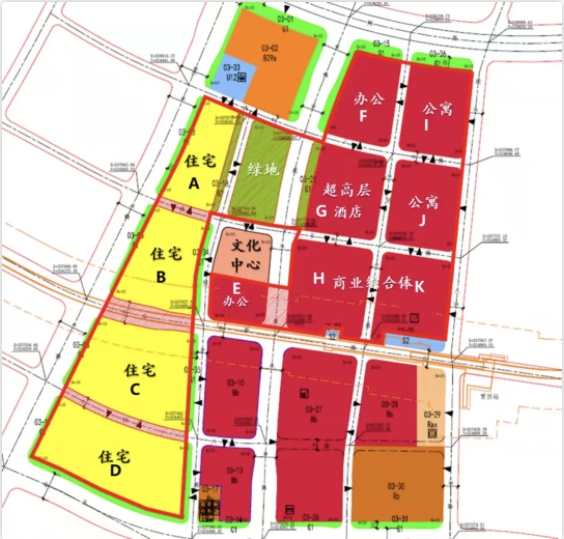
根据规划,华润置地中心总体量约75万方,将打造高端购物中心、200米地标建筑、五星级酒店、地下文体场馆于一体的大型综合体。

华润置地中心项目分为11个地块开发,其中 ABCD为住宅地块(即华润云上润府,规划建设18栋28F-33F高层住宅),总建面约23万方;剩余 E-K 地块是商办地块,总建面约52万方, 其中包括万象系商业、文体中心、科学家公园、创客西街、高端公寓、星级酒店以及一座200米的雨花地标构成。

华润置地中心F、G、H、I、J、K分区地块的主要规划如下:

① F地块将建设一栋120米高、24层的高楼,用途为酒店+办公;一栋150米高、33层的纯办公楼;一栋24米高、5层的商业办公楼;

② G地块建设一栋200米高、44层的高楼,另外还有2栋2-3层的商业楼;

③ H地块和K地块则规划的是两栋6层商业体,中间通过两道空中连廊相连,拟打造华润旗下万象系商业;

④ I地块和J地块内主要建设的则是公寓产品,另有部分5层的商业楼栋。


华润置地中心前身为雨核G39地块,2021年5月,华润置地以总价91.7亿元竞得该项目,成交楼面价7277元/㎡。


02

实探华润置地中心!万象系商业明年开业?

7月30日,西祠房产实探华润置地中心,带来项目最新进展。

西祠房产在现场看到,华润置地中心200米高楼底板已经浇筑完毕,钢筋林立,现场并未见塔吊等机器作业以及工人施工。

高楼旁低矮商业已经成型,即将封顶。


位于I地块的3栋公寓楼基本已经完工,预计今年年底交付;F地块的2栋150米、120米办公楼也已基本完工,正在张贴玻璃外墙。


拟建2栋公寓以及商业的J地块尚未动工。

文化体育用地上有机器正在平整土地。


E地块地块尚未启动。

位于H地块和K地块的万象系商业正在如火如荼地施工,基本已经完工,内部进行道路平整,进行收尾工作。商业外墙上的品牌logo“mixc万象”字样已见轮廓。有消息称,万象系商业将从前期的万象汇提档为万象天地,预计明年开业。


据悉,万象系商业建筑面积约14.3万方,含约12.4万方商业、1.9万方MIX商业街区,之间通过空中连廊相接。


住宅部分华润云上润府ABD地块已经交付,C地块预计今年年底交付。


华润置地中心200米高楼后续情况如何?西祠房产将持续关注。