玻璃幕墙!毛坯限价4.4万/㎡!河西纯新盘规划出炉

今日看点

1、毛坯限价4.4万/㎡!河西南新添11栋住宅

2、2654组人抢368套房!江北两大热盘今日开盘

3、江核多个楼盘预计本月加推,前期均价3.1万/㎡起!


1

毛坯限价4.4万/㎡!

河西南新添11栋住宅


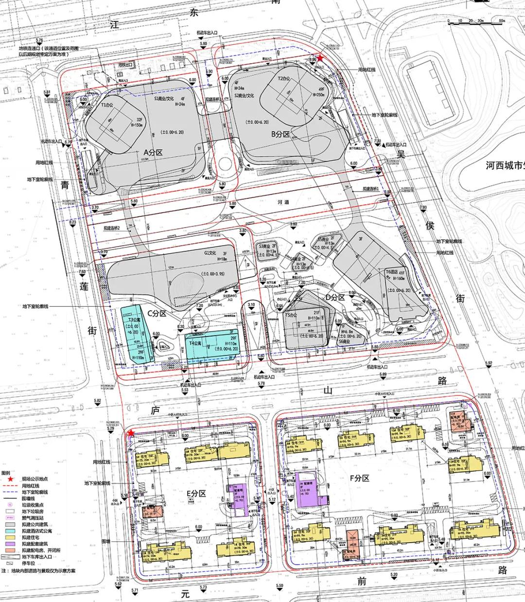
河西南嘉华G72地块规划正式出炉!南京市规划和自然资源局发布香港嘉华河西南G72地块批前公示。规划显示,项目拟建一栋250米主塔,两栋150米、110米办公副塔,一栋160米酒店副塔,E、F地块共建有11栋住宅。


项目共有6个分区,其中北侧位置,近宁和城际吴侯街地铁站位置将打造商业和写字楼、公寓,而南侧E分区和F分区是住宅组团。


嘉华G72地块住宅一共11栋,其中,E分区规划4栋住宅,总高24-25F;F分区规划7栋住宅,总高31-32F。


据住宅效果图显示,窗墙比很大,项目是全封闭的玻璃立面。


据此前消息,河西南的香港嘉华G72地块动了,地块内部已有挖掘机进场,疑似在平整土地,近期将打试桩,项目预计最快年内能亮相。项目住宅体量约12.4万方,将打造户型100、120、160、200㎡,毛坯限价为4.4万/㎡,加上全装修、升级装修,预计总价500万。


去年10月21日,河西南G72综合体地块,被香港嘉华以底价47.9亿元拿下,毛坯房均价4.4万/㎡。该地块为二类居住用地+商办混合用地,定位为地区性高品质商业中心,辐射河西新城南部区域。


2

2654组人抢368套房!

江北两大热盘今日开盘


卓越云曜今天上午9点在售楼处开盘。本次开盘共有1044组买房人报名,中签率13.22%!


据开发商消息,卓越云曜当日售罄!


项目加推1、2号楼,共计138套装修房源(含42套人才房,42套无房家庭保障房),户型建面约103、118㎡,全装修销许均价约3.2万/㎡。


江畔月明府今日下午1点在售楼处开盘,此次共有1610组买房人报名,综合中签率15.4%!


项目加推6、7、8号楼248套房源(含75套人才房,75套无房家庭保障房),销许均价约30800-31600元/㎡,验资130万,首付5成起。建面约89、103、109、116㎡,精装修交付。


此外,江核热盘长江时代1516G16地块1、2号楼销许已下,正在报名。共192套房源,精装交付,销许均价32824-32593元/㎡,首付8成,验资200万。户型建筑面积105、128㎡,项目提供升级装修包,预计2023年4月交付,实际以合同为准。

报名时间:2021年5月14日上午9点—2021年5月15日上午9点

线上报名方式:关注微信公众号”长江时代1516“

户型图一览:


长江时代1516由保利G16地块和新希望G15地块两幅地块组成,项目位于两隧(纬三路和纬七路过江隧道)之间,属江北核心区南工大板块,距离10号线南工大站约700米,可无缝换乘1、2号线,另有规划中的4、11、13号线。该项目毗邻长江时代1314,紧邻通宇林景润园,不远处就是花语熙岸府和万科江悦光年。


项目装修包约1514元/㎡,三大件采用国际一线品牌,中央空调是日立,地暖是菲斯曼,新风是霍尼韦尔。此外还有唯宝马桶、洗脸盆,高仪的龙头、花洒、方太油烟机、燃气灶,科勒大单槽和手拉式水龙头等。


3

江核多个楼盘预计本月加推,

前期均价3.1万/㎡起!


启迪水木滨江预计本月加推D1#、D2#、D6#楼,这3栋楼也是项目最后一批房源,卖完即收官。户型面积有98㎡、130㎡、160㎡三种,前期开盘均价在31134元/㎡-32187元/㎡,首付最低8成起。


花语熙岸府预计本月加推4#、8#、12#三栋楼,户型建筑面有97㎡、117㎡两种,前期开盘首付最低8成,销许均价在32372元/㎡-32953元/㎡。


万科江悦光年预计月底加推剩余楼栋,为1#、4#、6#楼共计251套房源,前期均价33416元/㎡-33637元/㎡,户型建筑面积约103㎡、113㎡、130㎡。


纯新盘和光锦棠府最快月底首开2#、3#、5#、7#、8#楼,超400套房源,户型面积有105㎡、130㎡、140㎡三种。


根据规划,项目将打造8栋住宅,其中6栋为26层,中间两栋为25层,毛坯销售最高限价31500元/㎡。

图片