验资260万!首付8成!南部新城热盘突击报名

今日看点

1、首付8成,均价4.4万/㎡!南部新城热盘突击报名

2、均价4.5万/㎡,首付4成!新玄武纯新盘2小时售罄

3、125-169㎡!新玄武新盘户型图曝光,即将首开

5、正荣润禾府!湖北房投G23地块案名公布


1

首付8成,均价4.4万/㎡!

南部新城热盘突击报名


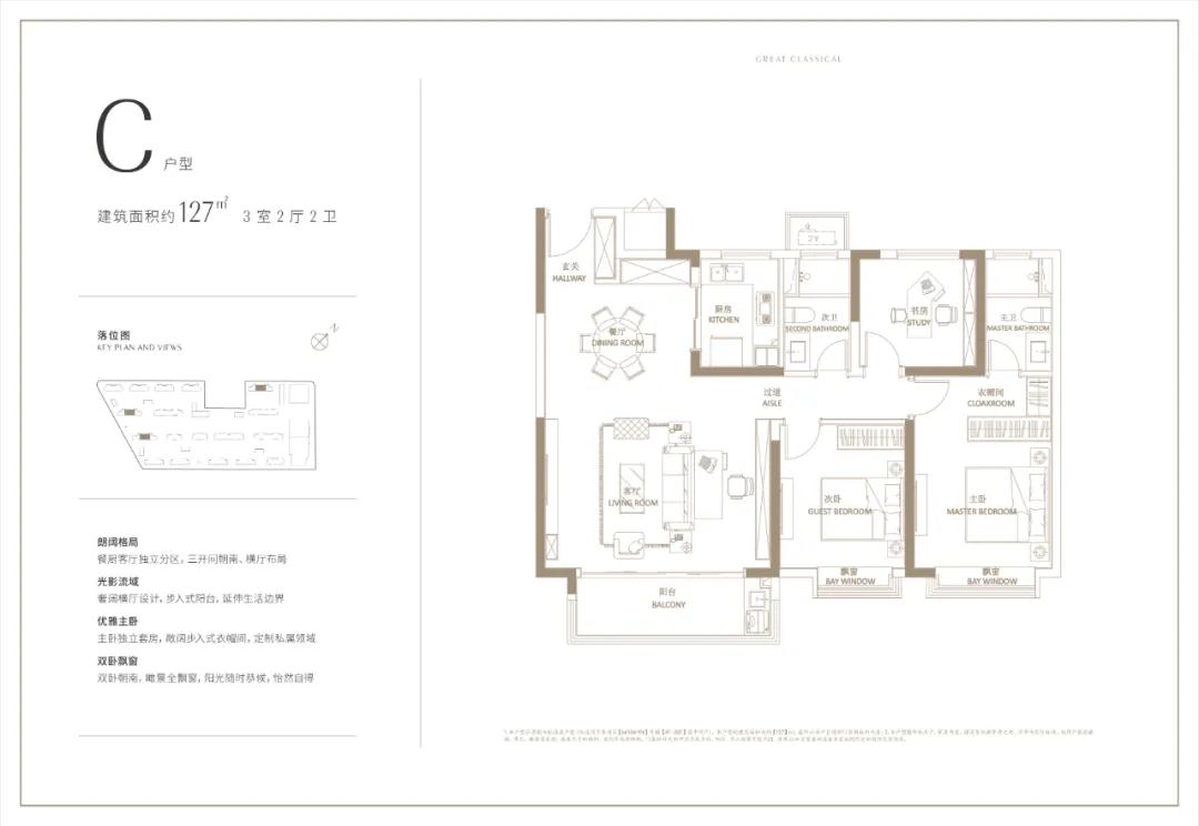
南部新城金地大成雅镜销许已下,本次加推20#楼,共112套精装房,其中人才房和无住房家庭保障房源各34套,户型建筑面积约105㎡、127㎡,销许均价44200元/㎡,首付8成起,报名需验资260万,另有升级装修包3200元/㎡可选。



报名时间:5月9日9时-5月10日12时

报名要求及方式如下:




金地大成雅境位于大校场跑道一侧,地理位置非常优越,前身为金地商置G13地块,于2020年4月30日被金地商置以总价68.7亿元竞得,成交楼面价13659元/㎡。



金地大成雅境总体量约72万方,分为A、B地块,其中B地块为商业部分,包括12万方的高端购物中心、3栋甲级写字楼和一栋酒店式公寓。



A地块的住宅部分,拟建设18栋30层住宅,户型面积约105-210㎡,共约1800多户,定位金地最新高端系“峯汇系产品”。



项目户型图如下:


2

均价4.5万/㎡,首付4成!

新玄武纯新盘2小时售罄


今日上午(5月8日),城北玄武宝龙城在南京香格里拉大酒店迎来首开。截至上午11时,据买房人透露,215套房源售罄。



本次首开共有3003组报名,中签率约7.16%。加推楼栋为D1、D3、D4号楼,户型建面约109、139㎡,销许均价44063-45398元/㎡,首付4成,精装交付。


户型图如下:

建面约109㎡龙熠三房:三开间朝南,南向客厅,主卧瞰景飘窗,次卧宽尺双阳台设计



建面约139㎡:云玺四房朝南四开间,约7m大面宽横厅,广角阳台+双飘窗配置



玄武宝龙城位于玄武区铁北红山新城核心区域,项目规划打造约58万方综合体,共分为5个组团开发,涵盖了1座大型的自持购物中心(约8万方)、精品住宅、酒店式公寓、甲级写字楼、以及1座艺术中心展览馆,将打造集购物、休闲、娱乐、生活为一体的都会旗舰综合体。



城南板桥的宝能翡丽河滨也于今日开盘。项目首开1、2号楼,共计188套房源(其中人才优先房源和无住房保障房源各57套),销许均价26558-26601元/㎡,首付3成,报名需验资70万,户型建筑面积为93、120、132㎡。两梯四户,精装修交付,拟交付时间2023年8月31日。



3

125-169㎡!

新玄武新盘户型图曝光,即将首开


近日,复地明日之城户型图曝光,户型建筑面积约125、140、169㎡,已公开位于城北万谷慧的城市展厅,预计二季度首开,放风价4.5-5万/㎡,首开6、7、8、9号楼,总高12-17层,没有装修包,首付比例暂未确定。


复地明日之城户型图如下:



项目拟打造9栋住宅,总高12-17层。效果图如下:



去年7月,复地以底价以30.9亿元摘得城北G22地块,成交楼面价11030元/㎡。


此外,新玄武新房项目还有星河国际、紫金悦峯。星河国际将加推B1号楼64套房,两梯四户,户型为128㎡边户,112㎡中间户。前期房源均价42688元/㎡,新加推房源预计均价4.5万/㎡,首付8成。


紫金悦峯销许已下,预计首开235套精装房,其中A组团11号楼,两梯四户,两个单元,边户121㎡,中间户81、120㎡,预计均价4.4万/㎡;C组团2号楼、一梯两户,三个单元,边户87㎡,中间户121㎡、133㎡,预计均价4.8万/㎡,首付预计3成起。


4

正荣润禾府!

湖北房投G23地块案名公布


葛塘新城的湖北房投G23地块案名已定为“正荣润禾府”,项目由湖北房投正荣联合开发,正荣操盘,打造建面约76-105㎡户型!


湖北房投葛塘G23地块共规划打造9栋18-31层高层住宅,未来毛坯销售限价1.85万/㎡。



该项目位于南京市六合区葛塘街道,江北新区新园路以南、团结大道以西。项目距离S8号线大厂站约1.5公里,距离美利广场约1.8公里。



地块于2020年12月31日被湖北房投竞得,成交楼面价9921元/㎡,未来毛坯限价1.85万/㎡。




目前,该区域内三盘齐聚,另外两盘为建发和著、建发和章。建发和著将打造16栋17-18层住宅,建发和章将打造9栋16-18层住宅,户型面积约86-123㎡,预计5月底公开售楼处。